Niemce, Jakubowice Konińskie

Dom na sprzedaż

5 pokoi 153,30 m2 7 795,17 zł/m2

1 195 000 zł

nowa oferta
Magdalena Wrzosek

Specjalista ds obrotu nieruchomościami

Opis nieruchomości

0% PROWIZJI OD KUPUJĄCEGO

Kasztanowa Residence Park
to inwestycja, która złożona będzie z 10 domów jednorodzinnych w zabudowie bliźniaczej.

Dom nr E o pow. uż. 153,30m2 z garażem jednostanowiskowym na działce o pow. 438 m2, w Jakubowicach Konińskich przy ulicy Kasztanowej.

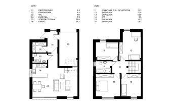
PARTER
- pokój dzienny z aneksem kuchennym (łącznie 44,5 m2),

- garderoba (4,4 m2),
- WC (4 m2),
- wiatrołap (6,5 m2),
- garaż jednostanowiskowy (19,10m2).

PIĘTRO
- 4 sypialnie (17,5 m2, 16,3 m2, 13,2 m2, 12 m2),
- łazienka z WC (5,5 m2),
- hol (10,3 m2).


Budynek w stanie deweloperskim. Budynek wyposażony w instalacje wewnętrzne:
- elektryczną,
- wodno-kanalizacyjną (przydomowa oczyszczalnia ścieków)
- gazową,

- c.o.

Ogrzewanie podłogowe, kocioł gazowy kondensacyjny z zamkniętą komorą spalania z regulatorem pokojowym oraz zewnętrznym czujnikiem pogodowym. W garażu gniazdo siłowe do ładowania samochodu elektrycznego.

Brama uchylna segmentowa z napędem elektrycznym, sterowana pilotem.
Ogrodzenie frontowe wykonane w technologii murowej, tył i boki w formie ogrodzenia panelowego ze stali ocynkowanej. Brama wjazdowa  przesuwna otwierana elektrycznie. Furtka z elektrozaczepem. Wiata śmietnikowa. Opaska, podjazd do garażu, przejście od furtki do budynku z kostki brukowej.
Droga wewnętrzna utwardzona, równolegle do drogi chodnik z kostki brukowej.

Położenie Osiedla gwarantuje szybki dojazd do Centrum oraz wielu dzielnic Lublina, a jednocześnie zapewnia jego mieszkańcom spokój i prywatność. Cicha i spokojna okolica, w pobliżu Szkoła Podstawowa w Jakubowicach Konińskich (1400 m), przystanek autobusowy (ok. 500 m), do granic miasta ok. 2500 m.


BUDYNEK W TRAKCIE REALIZACJI, oddanie do użytku w II kwartale 2025 r. 

Otwieramy przed Tobą całe miasto!
Sprzedajemy i wynajmujemy mieszkania, domy, lokale i działki. Działamy zarówno na rynku pierwotnym, jak i wtórnym. Zapewniamy kompleksową obsługę: doradztwo kredytowe i prawne, pomoc notariusza, architekta oraz projektanta wnętrz.


W razie pytań, po prostu skontaktuj się z nami.


Więcej informacji pod nr tel.: 887 399 631 – Magdalena Wrzosek

Link do strony inwestycji:
https://kasztanowaresidencepark.pl/

Opis oferty sporządzony został na podstawie informacji pochodzących od właściciela oferującego nieruchomość, dokumentów opisujących jej stan prawny i przeprowadzonych oględzin. Opis ten może podlegać aktualizacji w miarę zmiany stanu fizycznego i prawnego nieruchomości oraz nie stanowi oferty handlowej określonej w art. 66 i następnych K.C.

Na prezentacji prosimy Państwa o podpisanie potwierdzenia przekazania adresu. Ze względów bezpieczeństwa właścicieli nieruchomości konieczne będzie podanie swoich danych. Imię i nazwisko, PESEL, nr telefonu, a także złożenie czytelnego podpisu na karcie odbioru adresu.

Nota prawna

Opis oferty zawarty na stronie internetowej sporządzany jest na podstawie oględzin nieruchomości oraz informacji uzyskanych od właściciela, może podlegać aktualizacji i nie stanowi oferty określonej w art. 66 i następnych K.C.

Szczegóły

Symbol oferty TKL-DS-7735
Powierzchnia 153,30 m²
Powierzchnia użytkowa 153,30 m²
Powierzchnia działki 438 m²
Liczba pokoi 5
Rodzaj domu bliźniak
Technologia budowlana beton komórkowy
Garaż w bryle
Stan prawny Wlasnosc
Okna PCV
Instalacje nowe
Zagosp. działki częściowo zagospodarowana
Ukształtowanie działki płaska
Kształt działki prostokąt
Pokrycie dachu blacha
Stan budynku do wykończenia
Ogrodzenie działki ogrodzona
Rok budowy 2025
Gaz jest
Woda piecyk gazowy
Dojazd droga utwardzona
Otoczenie zabudowa jednorodzinna
Ogrzewanie gazowe
Prąd w budynku
Kanalizacja własna oczyszczalnia

Pomieszczenia

Wysokość pomieszczeń 2,75 m
Powierzchnia pokoi 38,6; 17,5; 16,3; 13,2, 12 m2
Podłogi pokoi wylewka
Typ kuchni aneks kuchenny połączony z jadalnią i salonem
Rodzaj kuchni aneks kuchenny
Powierzchnia kuchni 5,9 m2
Podłoga kuchni wylewka
Typ łazienki razem z wc
Liczba łazienek 1
Liczba WC 1
Powierzchnia WC 4 m2

Podobne oferty

Dom na sprzedaż - Niemce, Boduszyn
dom na sprzedaż - Niemce, Boduszyn

TKL-DS-7737

Niemce, Boduszyn
dom na sprzedaż

5 pokoi 157,00 m²

1 280 000
8 152,87 zł/m2
oferta na wyłączność
Dodaj
do notatnika
Dom na sprzedaż - Niemce, Jakubowice Konińskie
dom na sprzedaż - Niemce, Jakubowice Konińskie

TKL-DS-7736

Niemce, Jakubowice Konińskie
dom na sprzedaż

5 pokoi 153,30 m²

1 195 000
7 795,17 zł/m2
oferta na wyłączność
Dodaj
do notatnika
Dom na sprzedaż - Niemce, Jakubowice Konińskie
dom na sprzedaż - Niemce, Jakubowice Konińskie

TKL-DS-7734

Niemce, Jakubowice Konińskie
dom na sprzedaż

5 pokoi 193,54 m²

1 390 000
7 181,98 zł/m2
nowa oferta
Dodaj
do notatnika
PLN
PLN
PLN
PLN
PLN
PLN
PLN
%
PLN
PLN
PLN

PLN

Dane:

PLN
%

Wynik:

PLN
pierwsza rata
ostatnia rata

Napisz do nas

Proszę wypełnić to pole
Proszę wypełnić to pole
Proszę wypełnić to pole
Proszę wypełnić to pole
Trwa wysyłanie...

Ta strona wykorzystuje pliki cookies w celach statystycznych oraz w celu dostosowania naszych serwisów do indywidualnych potrzeb klientów. Zmiany ustawień dotyczących plików cookie można dokonać w dowolnej chwili modyfikując ustawienia przeglądarki. Korzystanie z tej strony bez zmian ustawień dotyczących cookies oznacza, że będą one zapisane w pamięci urządzenia.

rozumiem