Opis nieruchomości
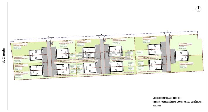
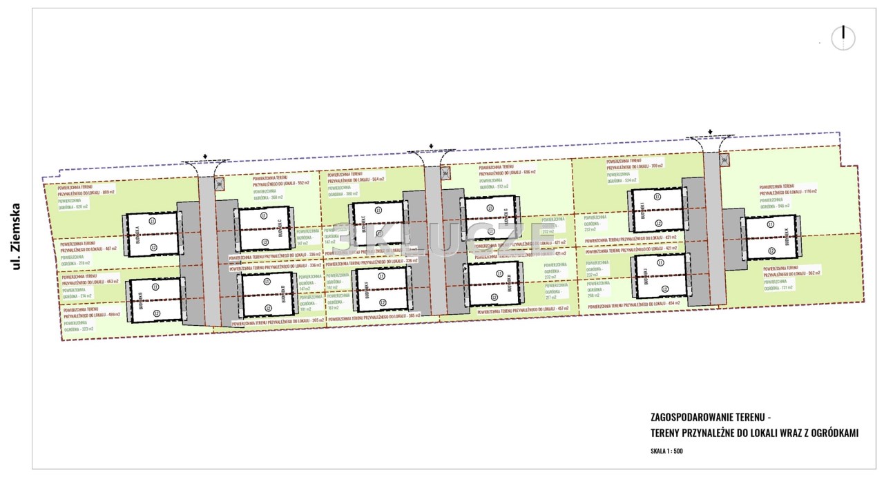
Na sprzedaż dom B1 w zabudowie bliźniaczej, położony na wyjątkowym osiedlu przy ulicy Pastelowej w Marysinie. Powierzchnia działki 463 m2 (w tym pow. ogródka 274 m2).
Pastelove Residence to osiedle złożone z 11 budynków w zabudowie jednorodzinnej dwulokalowej (22 lokale), na działkach od 336 do 1116 m2. Budynki wyróżniają się nowoczesną bryłą, dużymi przeszkleniami oraz wysoką jakością zastosowanych rozwiązań.
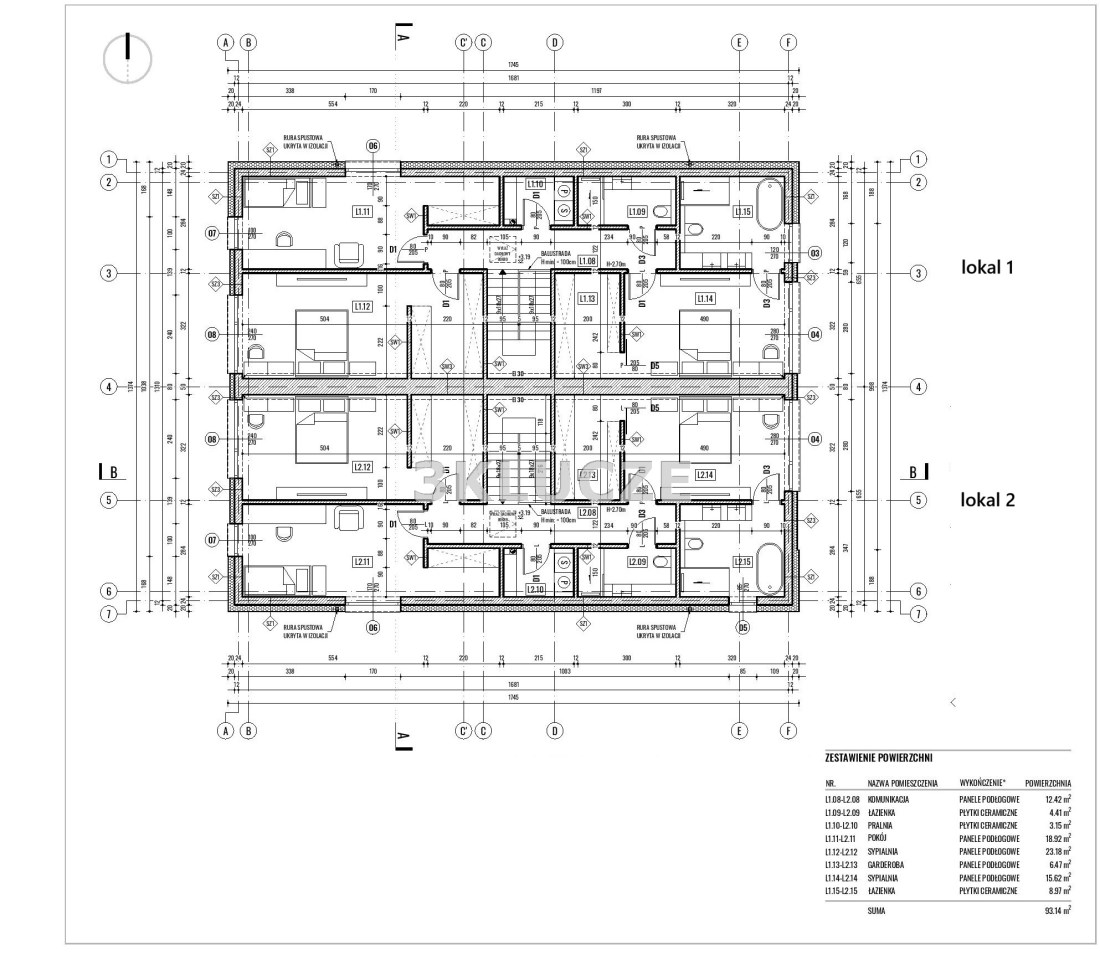
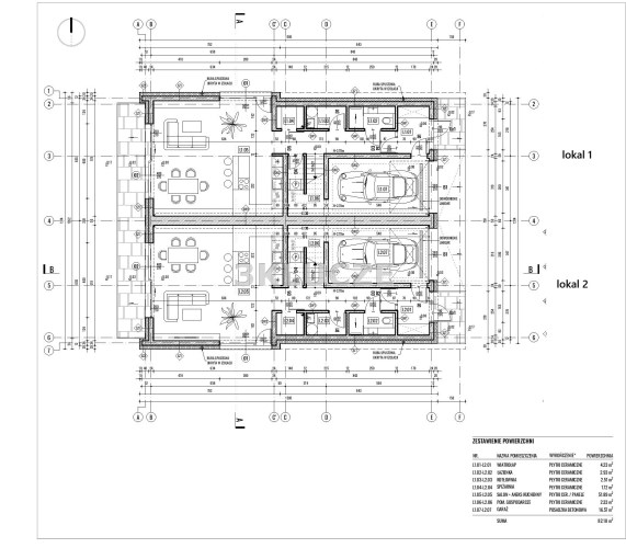
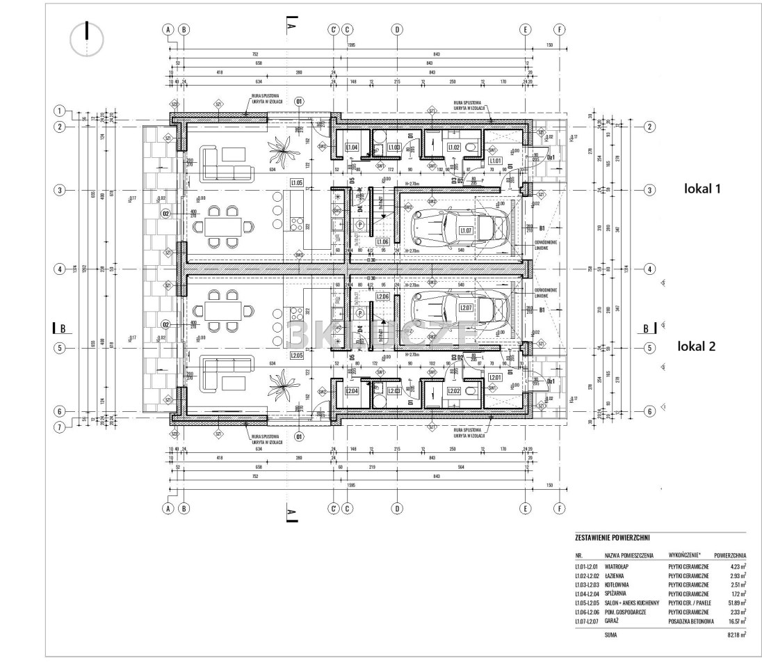
Na powierzchnię użytkową 175,32 m2 składa się:
PARTER:
przestronny salon z aneksem kuchennym i jadalnią (51,89 m2), spiżarka, łazienka, pomieszczenie gospodarcze, kotłownia, wiatrołap, garaż jednostanowiskowy
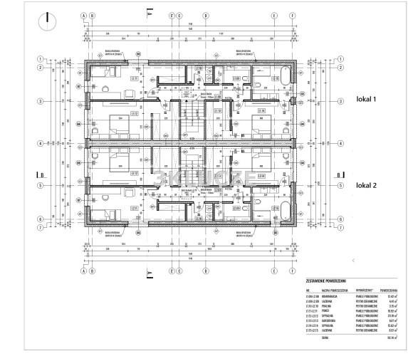
PIĘTRO:
3 sypialnie (każda z garderobą), 2 łazienki, pralnia
Budynki w stanie deweloperskim, o podwyższonym standardzie:
- okna aluminiowe 3 szybowe, profile Aluron, okucia Sobinco
- wentylacja mechaniczna z rekuperacją
- fotowoltaika 3,18 kWp - z możliwością dalszej rozbudowy na preferencyjnych warunkach
- ogrzewanie podłogowe, piec i zasobnik Bosch
- wykonana instalacja klimatyzacji (urządzenie do dokupienia przez klienta)
- drzwi antywłamaniowe z zamkiem na klucz, czytnikiem numerycznym, na odcisk palca, pochwyt 180 cm podświetlany, próg podświetlany, możliwość sterowania z telefonu
- brama garażowa panelowa Wiśniowski
- rynny i rury spustowe pod elewacją ze zbiornikiem podziemnym na wody opadowe
Media: prąd, gaz, wodociąg i kanalizacja z sieci miejskiej, rurarz pod instalacje teletechniczne (internet, telewizja kablowa, telefon).
Atrakcyjna lokalizacja, ok. 1,5 km od granicy Lublina, a 8 km od centrum. W niedalekiej odległości supermarket Biedronka (3 km), sklep Lewiatan (1,5 km), szkoła (3,5 km).
Kameralne i ciche osiedle.
Wjazd na obwodnicę w odległości ok. 3,5 km (węzeł Czechów).
Planowany termin zakończenia robót budowlanych 31.12.2026 r.
OFERTA DOSTĘPNA WYŁĄCZNIE W BIURZE NIERUCHOMOŚCI 3KLUCZE
Polecamy!
Otwieramy przed Tobą całe miasto!
Sprzedajemy i wynajmujemy mieszkania, domy, lokale i działki. Działamy zarówno na rynku pierwotnym, jak i wtórnym. Zapewniamy kompleksową obsługę: doradztwo kredytowe i prawne, pomoc notariusza, architekta oraz projektanta wnętrz.
W razie pytań, po prostu skontaktuj się z nami.
Więcej informacji pod nr tel.: 887 399 631 – Magdalena Wrzosek
Link do strony inwestycji:
https://lupina.pl/inwestycje/pastelove-residence/
Opis oferty sporządzony został na podstawie informacji pochodzących od właściciela oferującego nieruchomość, dokumentów opisujących jej stan prawny i przeprowadzonych oględzin. Opis ten może podlegać aktualizacji w miarę zmiany stanu fizycznego i prawnego nieruchomości oraz nie stanowi oferty handlowej określonej w art. 66 i następnych K.C.
Na prezentacji prosimy Państwa o podpisanie potwierdzenia przekazania adresu. Ze względów bezpieczeństwa właścicieli nieruchomości konieczne będzie podanie swoich danych. Imię i nazwisko, PESEL, nr telefonu, a także złożenie czytelnego podpisu na karcie odbioru adresu.
Nota prawna
Opis oferty zawarty na stronie internetowej sporządzany jest na podstawie oględzin nieruchomości oraz informacji uzyskanych od właściciela, może podlegać aktualizacji i nie stanowi oferty określonej w art. 66 i następnych K.C.Szczegóły



