Lublin, Sławin, Botanik

Mieszkanie na sprzedaż

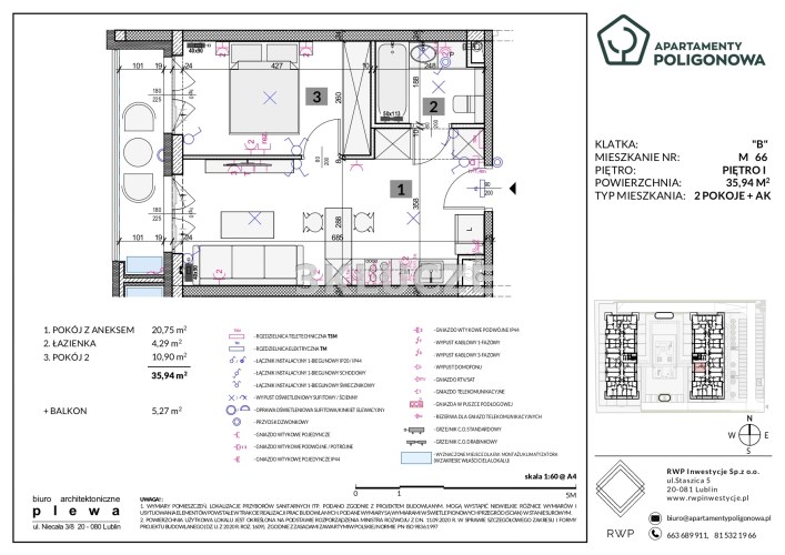
2 pokoje 1 piętro 35,94 m2 10 800,00 zł/m2

388 152 zł

nowa oferta
Sylwia Niedźwiecka

Specjalista ds obrotu nieruchomościami

Opis nieruchomości

0% PROWIZJI OD KUPUJĄCEGO

Dwupokojowe mieszkanie na I piętrze budynku w trakcie realizacji na Botaniku. Salon z aneksem kuchennym o pow. 20,75m2 z wyjściem na balkon. Sypialnia o pow. 10,9m2. Łazienka z WC 4,29m2.

Wystawa okien: zachód.

Miejsce postojowe w garażu podziemnym w cenie 49.000 zł.

TERMIN REALIZACJI: IV kwartał 2026r.

MEDIA: ogrzewanie miejskie, woda, prąd.

Otwieramy przed Tobą całe miasto!
Jesteśmy specjalistami od rynku pierwotnego. U nas znajdziesz najlepsze inwestycje w jednym miejscu. Zamiast przeglądać oferty różnych deweloperów, zapoznaj się z naszą ofertą. Zapewniamy kompleksową obsługę: doradztwo kredytowe i prawne, pomoc notariusza, architekta oraz projektanta wnętrz.

Zadzwoń do nas i dowiedz się więcej, tel. 535 689 910, 663 689 911.

Opis oferty sporządzony został na podstawie informacji pochodzących od właściciela oferującego nieruchomość, dokumentów opisujących jej stan prawny i przeprowadzonych oględzin. Opis ten może podlegać aktualizacji w miarę zmiany stanu fizycznego i prawnego nieruchomości oraz nie stanowi oferty handlowej określonej w art. 66 i następnych K.C.

Na prezentacji prosimy Państwa o podpisanie potwierdzenia przekazania adresu. Ze względów bezpieczeństwa właścicieli nieruchomości konieczne będzie podanie swoich danych. Imię i nazwisko, PESEL, nr telefonu, a także złożenie czytelnego podpisu na karcie odbioru adresu.

Nota prawna

Opis oferty zawarty na stronie internetowej sporządzany jest na podstawie oględzin nieruchomości oraz informacji uzyskanych od właściciela, może podlegać aktualizacji i nie stanowi oferty określonej w art. 66 i następnych K.C.

Szczegóły

Symbol oferty TKL-MS-7480
Powierzchnia 35,94 m²
Powierzchnia użytkowa 35,94 m²
Powierzchnia balkonów/tarasów 5,27 m²
Liczba pokoi 2
Piętro 1
Rodzaj budynku nowe budownictwo
Liczba pięter w budynku 3
Garaż miejsce postojowe
Stan lokalu deweloperski
Instalacje nowe
Balkon jest
Liczba balkonów 1
Woda tak
Ogrzewanie miejskie
Winda tak
Usytuowanie jednostronne

Pomieszczenia

Powierzchnia pokoi 20,75; 10,9 m2
Rodzaj kuchni aneks kuchenny - połączony z salonem
Typ łazienki razem z wc
Liczba łazienek 1
Powierzchnia łazienki 4,29 m2

Podobne oferty

Mieszkanie na sprzedaż - Lublin, Sławin, Botanik
mieszkanie na sprzedaż - Lublin, Sławin, Botanik

TKL-MS-7485

Lublin, Sławin, Botanik
mieszkanie na sprzedaż

2 pokoje 36,48 m²

434 112
11 900,00 zł/m2
nowa oferta
Dodaj
do notatnika
Mieszkanie na sprzedaż - Lublin, Sławin, Botanik
mieszkanie na sprzedaż - Lublin, Sławin, Botanik

TKL-MS-7481

Lublin, Sławin, Botanik
mieszkanie na sprzedaż

2 pokoje 40,06 m²

432 648
10 800,00 zł/m2
nowa oferta
Dodaj
do notatnika
Mieszkanie na sprzedaż - Lublin, LSM
mieszkanie na sprzedaż - Lublin, LSM

TKL-MS-7447

Lublin, LSM
mieszkanie na sprzedaż

3 pokoje 56,00 m²

469 000
8 375,00 zł/m2
oferta na wyłączność
Dodaj
do notatnika
Mieszkanie na sprzedaż - Lublin, Śródmieście, okol. Politechniki
mieszkanie na sprzedaż - Lublin, Śródmieście, okol. Politechniki

TKL-MS-7443

Lublin, Śródmieście,…
mieszkanie na sprzedaż

2 pokoje 38,42 m²

498 000
12 962,00 zł/m2
nowa oferta
Dodaj
do notatnika
PLN
PLN
PLN
PLN
PLN
PLN
PLN
%
PLN
PLN
PLN

PLN

Dane:

PLN
%

Wynik:

PLN
pierwsza rata
ostatnia rata

Napisz do nas

Proszę wypełnić to pole
Proszę wypełnić to pole
Proszę wypełnić to pole
Proszę wypełnić to pole
Trwa wysyłanie...

Ta strona wykorzystuje pliki cookies w celach statystycznych oraz w celu dostosowania naszych serwisów do indywidualnych potrzeb klientów. Zmiany ustawień dotyczących plików cookie można dokonać w dowolnej chwili modyfikując ustawienia przeglądarki. Korzystanie z tej strony bez zmian ustawień dotyczących cookies oznacza, że będą one zapisane w pamięci urządzenia.

rozumiem