Lublin, Sławin, Botanik

Mieszkanie na sprzedaż

4 pokoje 3 piętro 70,00 m2 11 900,00 zł/m2

833 000 zł

nowa oferta
Sylwia Niedźwiecka

Specjalista ds obrotu nieruchomościami

Opis nieruchomości

0% PROWIZJI OD KUPUJĄCEGO

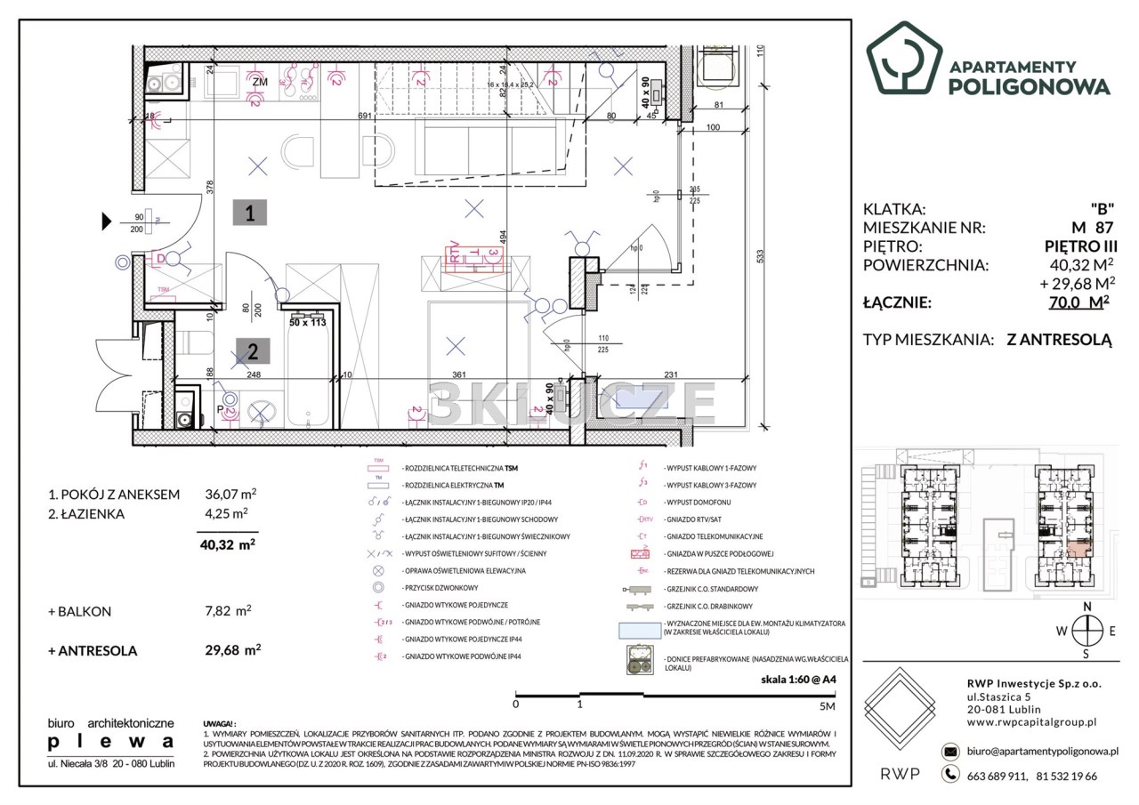
Mieszkanie z antresolą na III piętrze budynku w trakcie realizacji na Botaniku. Salon z aneksem kuchennym o pow. 36,07m2. Łazienka z WC 4,25m2. Antresola o pow. 29,68m2 z wyjściem na taras.
Pow. dodatkowa ok. 11m2.

Wystawa okien: wschód.
Taras o pow. 63,3m2.

Miejsce postojowe w garażu podziemnym w cenie 49.000 zł. 

TERMIN REALIZACJI: I kwartał 2026r.

MEDIA: ogrzewanie miejskie, woda, prąd.

W SWOJEJ OFERCIE POSIADAMY WIĘCEJ MIESZKAŃ W PROMOCYJNYCH CENACH!

Otwieramy przed Tobą całe miasto!
Jesteśmy specjalistami od rynku pierwotnego. U nas znajdziesz najlepsze inwestycje w jednym miejscu. Zamiast przeglądać oferty różnych deweloperów, zapoznaj się z naszą ofertą. Zapewniamy kompleksową obsługę: doradztwo kredytowe i prawne, pomoc notariusza, architekta oraz projektanta wnętrz.

Zadzwoń do nas i dowiedz się więcej, tel. 535 689 910, 663 689 911.

Opis oferty sporządzony został na podstawie informacji pochodzących od właściciela oferującego nieruchomość, dokumentów opisujących jej stan prawny i przeprowadzonych oględzin. Opis ten może podlegać aktualizacji w miarę zmiany stanu fizycznego i prawnego nieruchomości oraz nie stanowi oferty handlowej określonej w art. 66 i następnych K.C.

Na prezentacji prosimy Państwa o podpisanie potwierdzenia przekazania adresu. Ze względów bezpieczeństwa właścicieli nieruchomości konieczne będzie podanie swoich danych. Imię i nazwisko, PESEL, nr telefonu, a także złożenie czytelnego podpisu na karcie odbioru adresu.

Nota prawna

Opis oferty zawarty na stronie internetowej sporządzany jest na podstawie oględzin nieruchomości oraz informacji uzyskanych od właściciela, może podlegać aktualizacji i nie stanowi oferty określonej w art. 66 i następnych K.C.

Szczegóły

Symbol oferty TKL-MS-7543
Powierzchnia 70,00 m²
Powierzchnia balkonów/tarasów 7,82 m²
Liczba pokoi 4
Piętro 3
Rodzaj budynku nowe budownictwo
Liczba pięter w budynku 3
Garaż miejsce postojowe
Stan lokalu deweloperski
Instalacje nowe
Balkon jest
Liczba balkonów 1
Liczba tarasów 1
Woda tak
Ogrzewanie miejskie
Winda tak
Tarasy taras
Usytuowanie jednostronne

Pomieszczenia

Powierzchnia pokoi 36,07; 29,68 m2
Rodzaj kuchni aneks kuchenny - połączony z salonem
Typ łazienki razem z wc
Liczba łazienek 1
Powierzchnia łazienki 4,25 m2

Podobne oferty

Mieszkanie na sprzedaż - Lublin, Sławin, Botanik
mieszkanie na sprzedaż - Lublin, Sławin, Botanik

TKL-MS-7546

Lublin, Sławin, Botanik
mieszkanie na sprzedaż

4 pokoje 70,89 m²

652 188
9 200,00 zł/m2
nowa oferta
Dodaj
do notatnika
Mieszkanie na sprzedaż - Lublin, Sławin, Botanik
mieszkanie na sprzedaż - Lublin, Sławin, Botanik

TKL-MS-7544

Lublin, Sławin, Botanik
mieszkanie na sprzedaż

4 pokoje 59,79 m²

711 501
11 900,00 zł/m2
nowa oferta
Dodaj
do notatnika
Mieszkanie na sprzedaż - Lublin, Sławin, Botanik
mieszkanie na sprzedaż - Lublin, Sławin, Botanik

TKL-MS-7542

Lublin, Sławin, Botanik
mieszkanie na sprzedaż

4 pokoje 64,63 m²

769 097
11 900,00 zł/m2
nowa oferta
Dodaj
do notatnika
Mieszkanie na sprzedaż - Lublin, Czechów Północny
mieszkanie na sprzedaż - Lublin, Czechów Północny

TKL-MS-7507

Lublin, Czechów Północny
mieszkanie na sprzedaż

3 pokoje 91,20 m²

895 000
9 813,60 zł/m2
oferta na wyłączność
Dodaj
do notatnika
PLN
PLN
PLN
PLN
PLN
PLN
PLN
%
PLN
PLN
PLN

PLN

Dane:

PLN
%

Wynik:

PLN
pierwsza rata
ostatnia rata

Napisz do nas

Proszę wypełnić to pole
Proszę wypełnić to pole
Proszę wypełnić to pole
Proszę wypełnić to pole
Trwa wysyłanie...

Ta strona wykorzystuje pliki cookies w celach statystycznych oraz w celu dostosowania naszych serwisów do indywidualnych potrzeb klientów. Zmiany ustawień dotyczących plików cookie można dokonać w dowolnej chwili modyfikując ustawienia przeglądarki. Korzystanie z tej strony bez zmian ustawień dotyczących cookies oznacza, że będą one zapisane w pamięci urządzenia.

rozumiem