Opis nieruchomości
Do wynajęcia
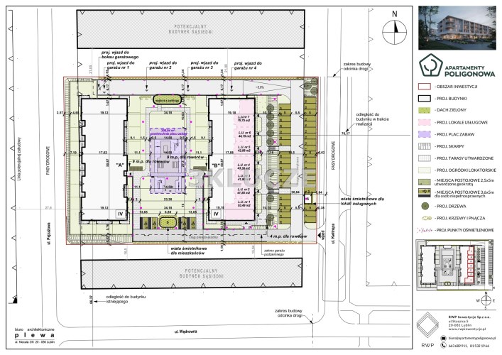
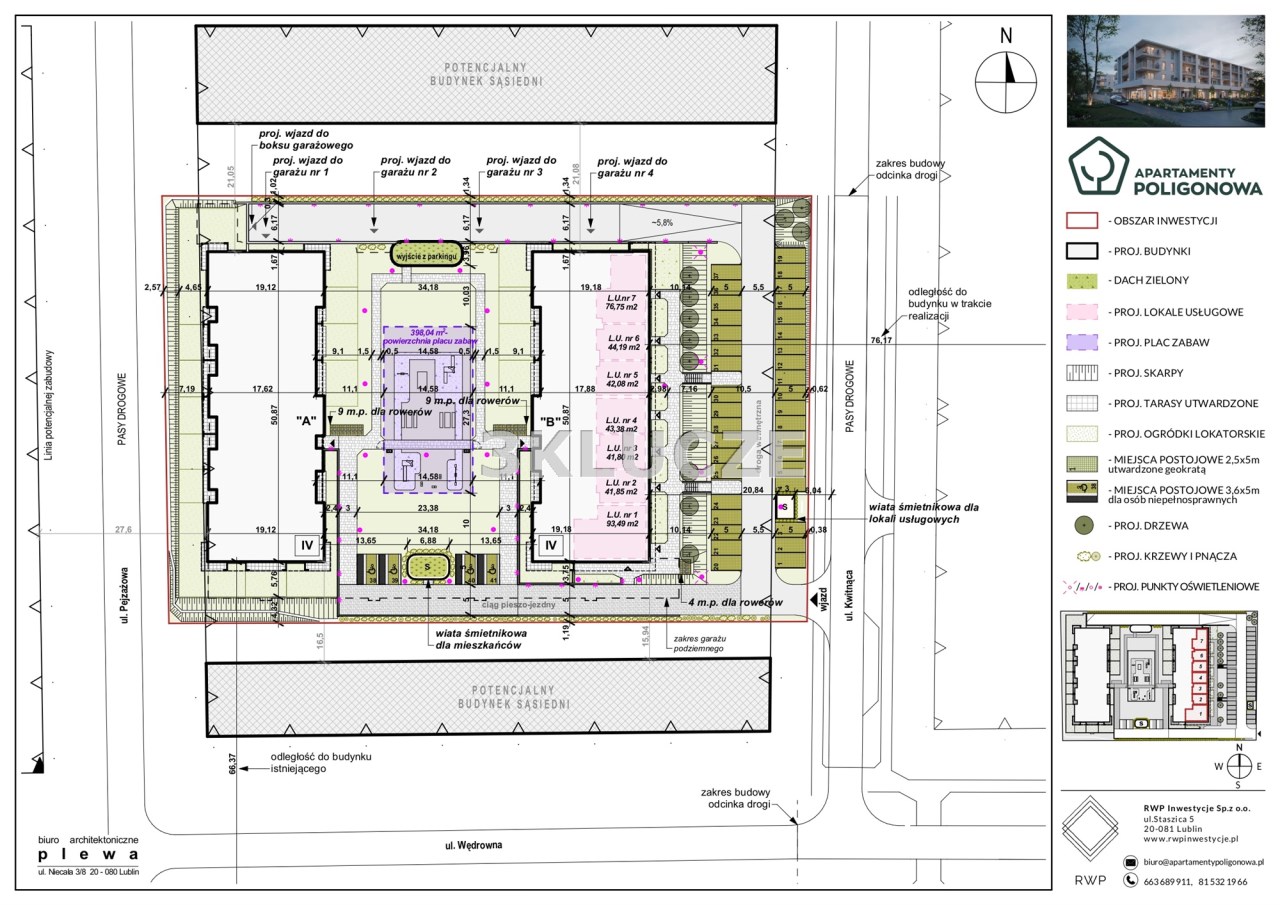
Lokal użytkowy o powierzchni 220,52 m2 na parterze nowego budynku w przy ul. Wędrownej/Kwitnącej, dostępny - IV kwartał 2026
Lokal w stanie deweloperskim - idealna baza pod realizację własnych koncepcji w zależności od potrzeb Najemcy. Dodatkowym atutem lokalu są duże witryny, które rozciągają się przez całą długość, co zapewnia doskonałą widoczność i ekspozycję.
Dodatkowo dostępne są również miejsca parkingowe zarówno zewnętrzne jak również w garażu podziemnym co gwarantuje komfort i oszczędność czasu zarówno klientom jak i pracownikom, umożliwiając im swobodny i bezproblemowy dostęp do obiektu.
Wystawa okien: północ, wschód, południe.
Położenie lokalu wśród nowoczesnej zabudowy wielomieszkaniowej jak również ciągu pieszego sprawia, że lokal można wykorzystać do prowadzenie różnych form działalności. Idealnie sprawdzą się jako lokale biurowe, handlowych, gabinety medyczne itp.
Istnieje możliwość podziału powierzchni.
Cena: 80 zł netto/m2 + VAT + opłaty licznikowe.
Otwieramy przed Tobą całe miasto!
Sprzedajemy i wynajmujemy mieszkania, domy, lokale i działki. Działamy zarówno na rynku pierwotnym, jak i wtórnym. Zapewniamy kompleksową obsługę: doradztwo kredytowe i prawne, pomoc notariusza, architekta oraz projektanta wnętrz.
W razie pytań, po prostu skontaktuj się z nami.
Nieruchomość prezentuje:
Małgorzata
tel. 790 200 925
Opis oferty sporządzony został na podstawie informacji pochodzących od właściciela oferującego nieruchomość, dokumentów opisujących jej stan prawny i przeprowadzonych oględzin. Opis ten może podlegać aktualizacji w miarę zmiany stanu fizycznego i prawnego nieruchomości oraz nie stanowi oferty handlowej określonej w art. 66 i następnych K.C.
Na prezentacji prosimy Państwa o podpisanie potwierdzenia przekazania adresu. Ze względów bezpieczeństwa właścicieli nieruchomości konieczne będzie podanie swoich danych. Imię i nazwisko, PESEL, nr telefonu, a także złożenie czytelnego podpisu na karcie odbioru adresu.
Za usługę pośrednictwa pobieramy wynagrodzenie w wysokości jednomiesięcznego czynszu.
Nota prawna
Opis oferty zawarty na stronie internetowej sporządzany jest na podstawie oględzin nieruchomości oraz informacji uzyskanych od właściciela, może podlegać aktualizacji i nie stanowi oferty określonej w art. 66 i następnych K.C.Szczegóły



